Les portes coulissantes
Offrez-vous une vue
à couper le souffle
La porte coulissante optimise l’espace en créant des séparations sans perdre de place à l’intérieur de votre
demeure. La porte coulissante est facile à poser et permet de réaménager et d’agencer votre pièce sans gros
travaux. Elle peut être posée en applique ou à galandage. La porte coulissante peut être réalisée avec les
matériaux de votre choix : PVC, bois, aluminium, verre. Nous vous proposons un large choix de coloris
(consultez le panel RAL).
Les portes en PVC
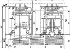
Coulissantes parallèles
– épaisseur de vitrage jusqu’á 32 mm
– profilés d’extension disponible pour
rails de roulement multiples
– joints co-extrudés
– les éléments de grande dimension
permettent d’avoir également des
valeurs d´inertie excellentes
– rail en aluminium pour faire glisser plus
facilement et plus lisse
– dimensions maximum pour 2 vantaux :
largeur 3000 mm hauteur 2250 mm

Coulissantes déboitantes
– épaisseur de vitrage jusqu’á 38 mm
– ferrures anti cambriolage
– joints co-extrudés
– les éléments de grande dimension
permettent d’avoir également des
valeurs d´inertie excellentes
– rail en inox pour faire glisser plus
facilement et plus lisse.
– dimensions maximum pour 2 vantaux :
largeur 3600 mm hauteur 2250 mm

Coulissantes soulevantes
– épaisseur de vitrage jusqu’á 42 mm.
– avec triple vitrage coefficient thermique
Uw jusqu’à 0,77 W/m².K.
– joints co-extrudés.
– design esthétique : coupe Classic-line.
– possibilité de compléter avec un capot
aluminium d’adaptation « Aluskin Classic ».
– rail en aluminium pour faire glisser
plus facilement et plus lisse.
– rupture thermique des seuils en aluminium
pour une isolation thermique encore meilleure.
– dimensions maximum pour 2 vantaux :
largeur 6700 mm hauteur 2250 mm.

Les portes en aluminium
Feuilletez notre catalogue

Vous aimerez également

Portes de garage




